上海人物摄像交流群

新探索 博洛尼工业化精装修的研究与实践

只看楼主 收藏 回复
  • - -
楼主

去年以来,我国各地PM2.5平均浓度值频频“爆表”。长时间、大范围的雾霾天气引发了公众对于大气污染的担忧。


在追溯雾霾天气形成的原因时,建筑工地的施工扬尘、机械产生的废气、物料输送产生的扬尘和汽车尾气排放一起,被视为几大“杀手”。


而如果更深入地去探究,我们会发现,上述几大“杀手”有可能在同一个场所出现,那就是建筑施工的现场。工地上漫天滚滚扬尘,各种机械不断排出刺鼻的气味,重型卡车进进出出,既不断排出尾气,又掀起新的扬尘。


这样的场景每天都会在国内不同城市不同的工地上不断地上演。整个社会似乎已经对这样的建筑生产方式习以为常,但在空气质量问题越来越引起全社会关注的背景下,我认为有必要再度探讨改变建筑生产方式的问题。


此外,我国的建筑行业其实是建立在劳动力价格相对低廉的基础之上的,但当劳动力成本不断上升以后,这已经逐渐成为制约我国建筑业进一步发展的瓶颈。从这一层面上来说,房地产行业和建筑行业也需要一种更为先进的生产方式来改变现状。


博洛尼一直在研究工业化精装的技术和体系,并在多个项目中付诸实践。在此,我将结合中国第一个基于SI体系的工业化住宅集成示范工程项目——雅世•合金公寓来谈谈我对工业化精装的认识和见解。抛砖引玉,希望能和各位总工们对此进行更为深入的探讨。


一、住宅精装修时代已经到来


,至今已经过去了10年。10年间精装修得到长足发展。博洛尼精装研究院搜集的数据显示:经济发达地区精装修房的市场份额约以每年15%~20%的速度快速增长。


而对于一些大型的房地产开发商而言,推进精装修房的发展更是他们坚定的选择。比如万科,根据其2012年年报,截至去年,万科交付的房屋,装修房占比超过 80%。


虽然从整个大的市场来看,毛坯房仍然占据主流,但是毛坯房存在着致命的缺陷:浪费严重;二次装修对房屋结构破坏大等等。相比之下。根据中建建筑科学技术研究院的数据,中国建筑施工垃圾占城市垃圾总量的30%,二次装修垃圾平均为2吨/户。而精装房交付可以基本消除装修过程中的二次污染,减少90%的装修垃圾。


另一方面,在经过几轮房地产调控之后,房地产逐渐剥离金融属性,回复到其民生属性、耐用消费品属性的产品本质。以刚性需求和自住需求为主的购房群体必定更加注重品质,而只有精装房才能真正体现出品质。


另外根据博洛尼精装研究院的调查,2011年有54.8%的被访消费者愿意选择精装房,比2010年上升了9.5%,这说明,随着消费理念升级、环保意识增强,精装修房的接受度也在大幅提高。


二、工业化精装修的五大优势


目前的精装修项目大多通过传统装修方式去实现,但与工业化精装修相比,传统装修方式有着成本高、质量不可控、工期难以保证等几方面的劣势。相比之下,工业化精装修的优势则至少体现为五个方面:


1、保证住宅质量和性能。先进的生产设备,流水线作业的生产方式,产品标准度高,精细度好;先进的工厂化管理方式,严格的质量控制体系,有效的品质保证;无以伦比的收纳功能,装修产品一体化解决。


2、保证工期。装修产品化,大幅减少现场作业,工期大大缩短;并行作业大量替代串行作业;作业质量高,返工和返修少;不受季节影响,可以全天候和全年施工。


3、成本系统化降低。由于机械的精确度和标准度,大幅提高材料利用度,使工厂化装修的材料利用度几乎可以达到;劳动生产率提升,单位人工成本降低;实现规模化生产。


4、节能环保。现场以拼接和安装为主,没有湿作业;施工现场无噪音、无垃圾、无污染、无油漆气味,装修完毕即可入住。


5、极易实现3U住宅。3U住宅指的是全寿命体系(Universal Lifecycle System)、全功能体系(Universal Function System)、全设施体系(Universal Equipment System)三大系列的标准体系,是一套科学可行且操作性强的,囊括了规划设计、施工建造、维护使用、再生改建等的标准体系,既保证了住宅性能和品质,也提高了居住的综合效益。


三、工业化精装修的系统和阶段


博洛尼将工业化精装修所涉及的产品或部品构建总结为六大系统:厨房系统、卫浴系统、木作系统、设备系统、管线系统、顶地隔墙系统。


此外,我们认为工业化精装修的实现要经历四个阶段:


1、工厂化,也称产品化。首先用专业、现代化的工厂大规模批量生产整体厨房、整体卫浴、木作系统、顶地隔墙、管线、设备等部品。然后用经过严格标准化培训后的产业化工人对工厂化部品进行现场安装、装配,替代传统装修的水、电、木、瓦、油等传统工人的现场作业。无疑,与传统装修相比,工厂化精装修会大大提升产品品质和现场作业的效率,并保证成本、工期。


目前,博洛尼的厨房、卫浴、PCID墙体及整体木作系统已经实现了工厂化生产及安装


2、标准化,也称批量化。标准化带来批量化,大幅度降低成本;装修工期与建筑施工同步提升,结构封顶一个月后交楼;标准统一,工厂化质量控制,质量稳定可靠。


需要特别指出的是,保障房大规模建设,尤其是公租房建设规划的推进,为工厂化精装修实现标准化、批量化生产提供了良好的契机。


3、平台化,也称模块化定制。这是工厂化精装修的高阶阶段,其最突出的特点是可以定制户型、装修风格、部品款式和配置、材料的类别和颜色等。但这一阶段对建筑标准化的要求非常高。


目前,博洛尼的中国厨房豪华配置体验中心推出了60 项厨房配置的个性化定制解决方案,其中包括保障安全实用的18 项标准配置、揭示舒适便捷的21 项中级配置及定义尊崇享受的21 项豪华配置。


4、3U住宅。前面也提到工业化精装修的一大优势是极易实现3U住宅,同时这也是工业化精装修要实现的一个目标。


3U住宅的全生命体系立足于满足居住家庭生命周期空间环境的适应性,考虑住宅持久耐用寿命,满足日常生活及将来的变化。而工业化精装修一方面提高了住宅的质量,延长了住宅的寿命,更能满足居住者长久居住的需求;另一方面当工厂化精装修到达平台化的发展阶段以后,可方便地定制户型,并在原有的户型上灵活进行转换,满足居住者不同阶段的需求。


3U住宅的全功能体系则从中等收入家庭对普适性住宅居住功能的完备性和面积空间能效性要求入手,从满足核心家庭居住功能需求出发,实现功能的优化集约。全功能体系提出了由综合性玄关的功能系统、交流性LDK的功能系统、多用性居室的功能系统、分离性卫浴的功能系统、家务性厨房的功能系统和居家性收纳的功能系统构成的、具有六大功能系统的全功能体系,而这与博洛尼精装研究院总结的以及博洛尼着力发展的工业化精装修六大系统分别对应。


除此之外,3U住宅的全设施体系还提出应通过采用住宅工业化技术将产品与技术整合、结合成套技术的研发,形成住宅生产的工业化,力求通过住宅技术集成体系提高住宅工业化程度,全面地提高住宅性能和居住品质。而这正是工业化精装修的核心和要义。目前,博洛尼工业化精装修体系已经整合了普适性中小套型住宅设计及集成技术、SI住宅内装分离与管线集成技术、隔墙体系集成技术、围护结构内保温与节能集成技术、干式地暖节能集成技术、整体厨房与整体卫浴集成技术、新风换气集成技术、架空地板系统与隔声集成技术和环境空间综合设计与集成技术等十多项核心技术与集成技术体系。


四、工业化精装修的实践案例


作为国内工业化精装修的先行实践者,博洛尼在工业化精装修领域已经积累了相当的经验以及一些成功的案例,比如招商银行营业网点、北京万科•公园5号、雅世合金公寓项目、阳光100博客空间等。


篇幅所限,下面我们将仅对雅世合金公寓项目工业化精装修的技术特点做出剖析,并分享这一项目所积累的经验。


该项目着眼于今天的建筑与未来生活的思考和对中国集合住宅未来发展方向的探讨,以空间的创新和技术的创新,让小户型空间的设计满足家庭对大空间的需求。以满足家庭全生命周期的百年住宅建筑,打造具有里程碑意义的亚洲集成住宅典范社区。


博洛尼在该项目中实现的主要技术点包括:1)墙体和管线分离技术\架空地板\双层贴面墙\双层天棚;2)设公共排水管道井和集合管,采用同层排水技术;3)软套管冷热水分水器技术;4)新风24小时负压式换气技术;5)日常检修维护措施;6)轻钢龙骨隔墙技术;7)取消烟道采用抽油烟机横排烟技术;8)内保温工艺;9)独户采暖,壁挂炉供暖干式地暖技术;10)整体浴室技术;11)无障碍设计。


图1 雅世·合金公寓项目是中国第一个基于SI体系的工业化住宅集成示范工程项目,同时也是预制装配式住宅的示范项目。


图2 雅世·合金公寓项目剖面图


博洛尼在该项目中成功地实践了百年住居理念的普适性3U解决方案。


①全寿命住宅系统:

提供丰富的室内空间格局及户型变化的可行性,可结合家庭结构的变化而调整空间格局,从功能上实现“可以一生居住的房子”。


图3 根据家庭结构的变化所做的空间格局的调整


② 全功能住宅系统:

大面积的收纳功能:

根据室内使用需要,在玄关设玄关柜;卧室设置衣柜;书房设置整体式书柜;客厅有整体式厅柜;厨房设置上下橱柜;卫生间设置置物吊柜;盥洗室设置镜柜和浴室地柜;另外在走廊还设置有大面积的储藏柜(如图10)。


空间灵活,套内面积:76.5㎡;收纳面积:10.3㎡;收纳面积系数高达13.3%。


图4 大面积的收纳功能


综合性玄关功能:

独立的玄关系统设置收纳空间,营造回归家庭的氛围;多功能玄关体现人文关怀,设置感应式灯光照明系统。


图5 综合性玄关功能


整体厨房系统:

双一字型布置,食品储备区、物品存储区、清洗区、准备区、烹饪区五个区布局合理;合理设计厨房五个区域------减少交叉三角的操作,劳动流线舒畅。


图6 整体厨房系统


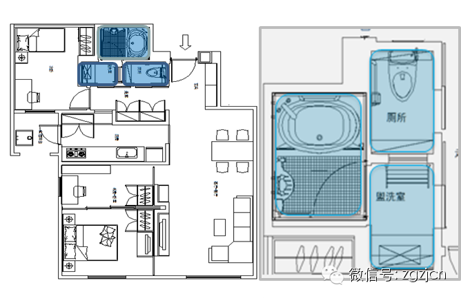
卫生间空间的三分离布局:

将传统卫生间分割成完全独立的三个部分,确保使用动线基础上保证同时使用的可能性,大幅度提高了使用便利性,体现人文关怀;独立浴室属于隐私空间,关上盥洗室的门,然后脱衣进入浴室;厕所独立方便来客使用,空间干净;合成卫浴使用,卫生间 一站式解决方案,是未来精装房卫浴空间发展的趋势。


图7 卫生间空间的三分离布局


独立的家政空间:

预留洗衣机位及晾晒空间,让家务活动时倍添轻松心情。


▲图8 独立的家政空间


总体而言,工业化精装修将是中国房地产行业转变生产方式,保证住宅质量,实现“百年住宅”理念,践行绿色、低碳、环保理念的方向。如果博洛尼的研究及实践能为今后我国的住宅建设提高居住品质、提高住宅全生命周期的综合价值,实现节省资源消耗的可持续居住环境方面起到积极的推动作用,我们将不懈努力。


作者:博洛尼精装研究院院长 徐勇刚

来源:总工之家

预制建筑网(www.precast.com.cn)整理编辑






或点击右上角“...” → “查看公众号”


预制建筑网 www.precast.com.cn

住宅产业化民间智库QQ群:147874495

工业化建筑设计师QQ群:138517101

工业化建筑学生QQ群:199516367

客服QQ:1575099316

微博:@预制建筑网

投稿邮箱:info@precast.com.cn

合作热线:0519-89881019


举报 | 1楼 回复

友情链接